David Vecchi

 

 

  • Museum of Forest Finn Culture, Svullrya, 2017          Read more

     

    Competition

     

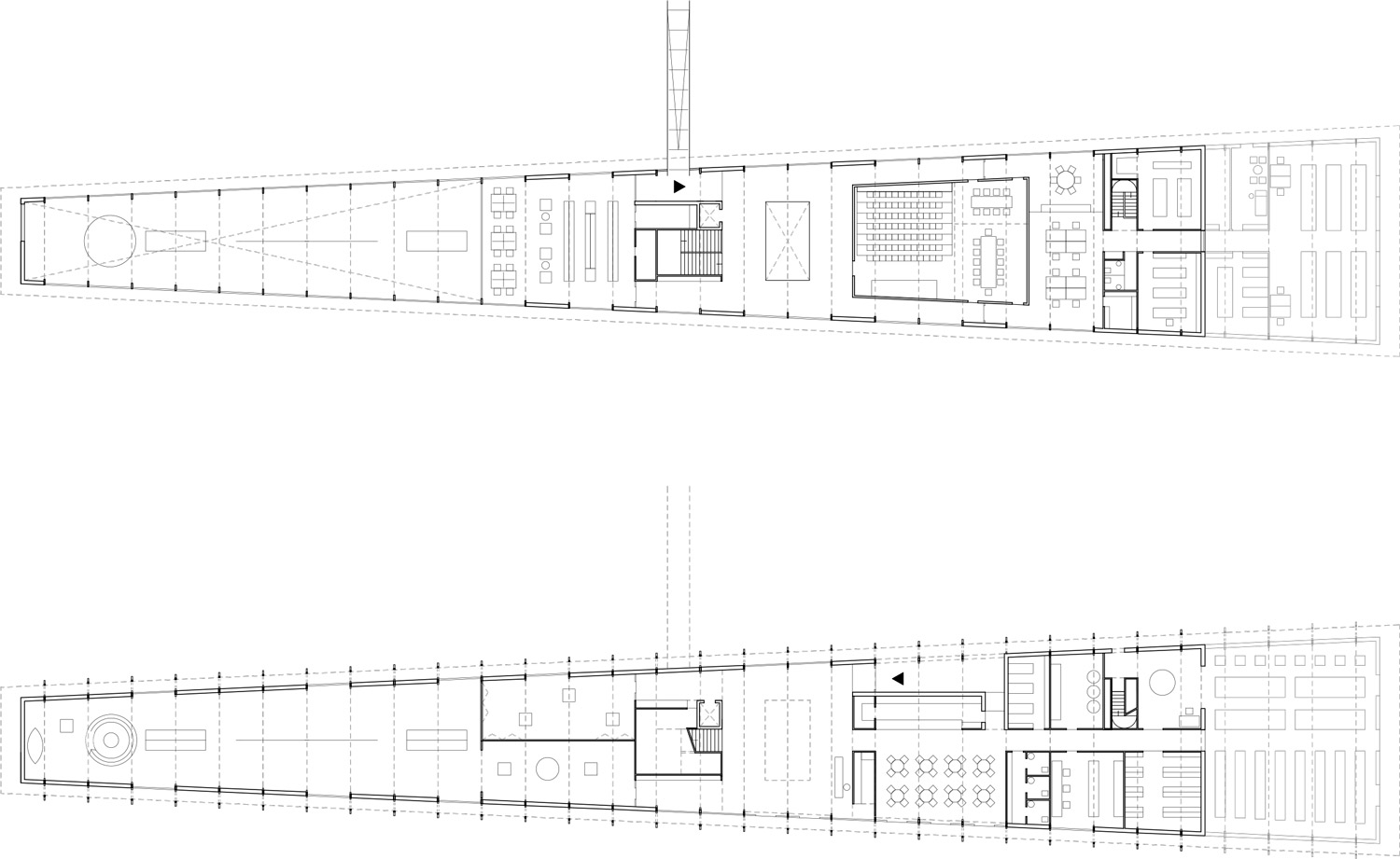
    The Forest Finns Museum sits on the west bank of Rotna, integrated among the existing trees, in close relation with the river on one side and the forest on the other side. It works on three volumes, one dedicated to the exhibition spaces, one to auditorium and storages and a central core occupied by a double height foyer, that acts as a connector.

    The “wedge” shaped plan optimizes the spaces in terms of functionality and of structural span. The roof unifies the volumes in an enlongated and distorted rectangle. When perceived from a distance, the volume balances its horizontality with the verticality of the surrounding trees. When perceived from nearby, the facade finds its proportions in the exchange between transparencies and masses, marked by the rhythm of the exposed structure.

     

    Program: Museum, Cultural

    Client: Municipality of Svullrya

    Project team: Marta Benedetti, Andrea Ravagnani, David Vecchi

Works

Office

 

  • Works

  • Office