David Vecchi

 

 

  • Kråkskogen, Lyngen, 2017          Read more

     

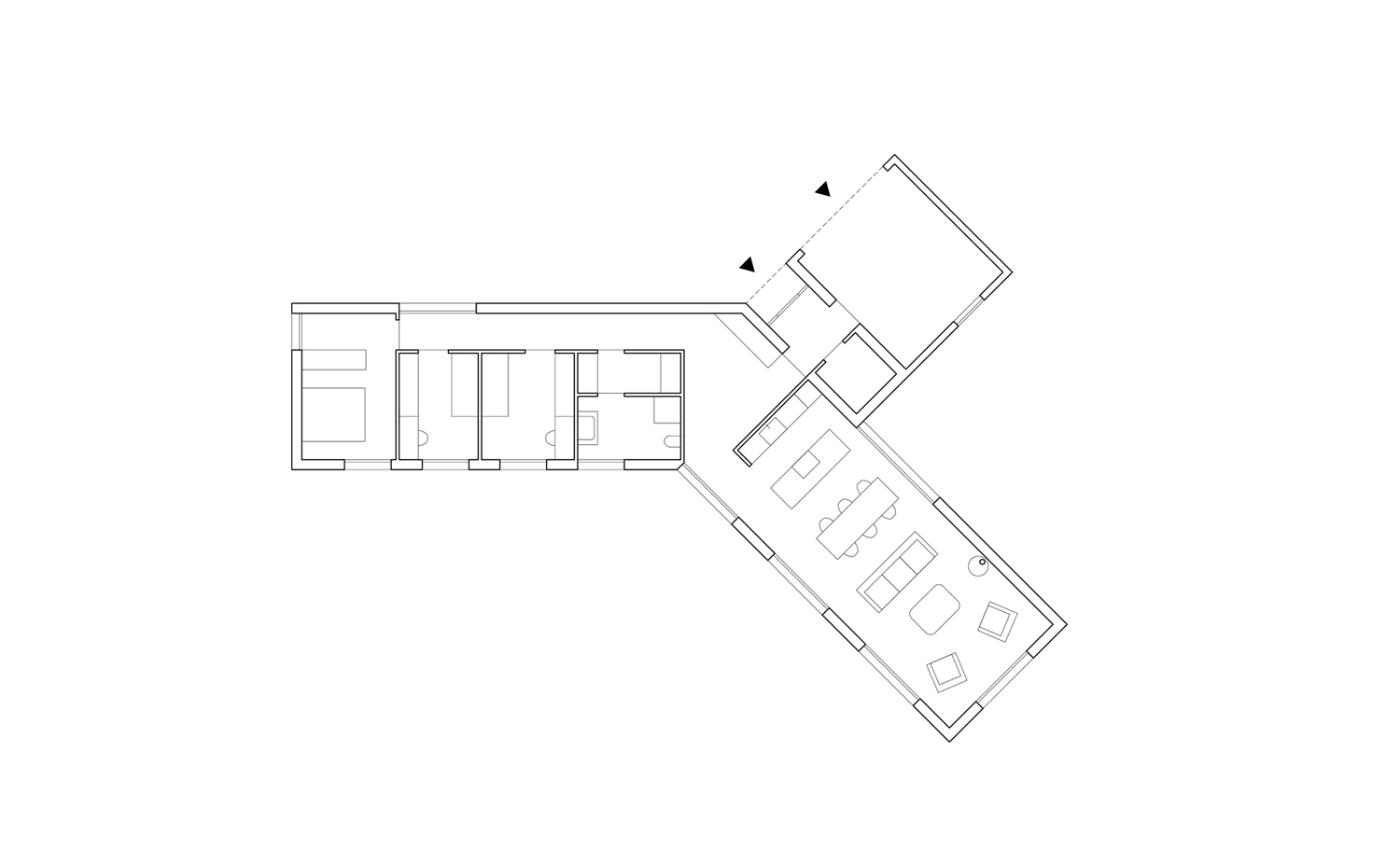
    The two houses will stand on a gently sloping land surrounded by simple village-like houses not far from the shore, with an exquisite view of the Lyngen Alps. The client’s request is to realize a building that is easy to prefabricate in elements and assemble on site. Therefore the project works on the relationship with the surroundings and on the modularity of the building elements. The houses stretch along the northsouth axis to occupy the highest part of the plot. They consist of three bodies set together in a “Y” shaped layout with the main entrance in the center. The kitchen-dining-living area is in the body that bends towards east, setting itself forward of the neighboring houses. This improves the sun exposition and allows the living room to catch a wider angle of the views of the Lyngen alps.

     

     

    Program: Private house, Lyngen, Norway

    Client: Lyngenbygg & Eiendom

    Project team: Andrea Ravagnani, David Vecchi, Marta Benedetti, Paolo Coppola

     

     

     

Works

Office

 

  • Works

  • Office