David Vecchi

 

 

  • Kunstsilo, Kristiansand, 2016          Read more

     

    Competition: 2nd prize

     

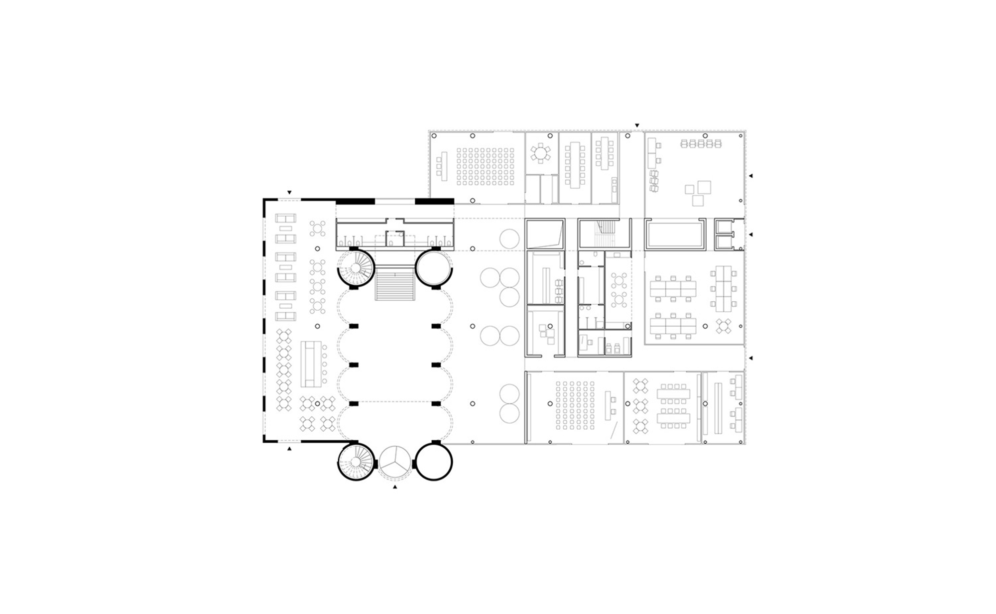
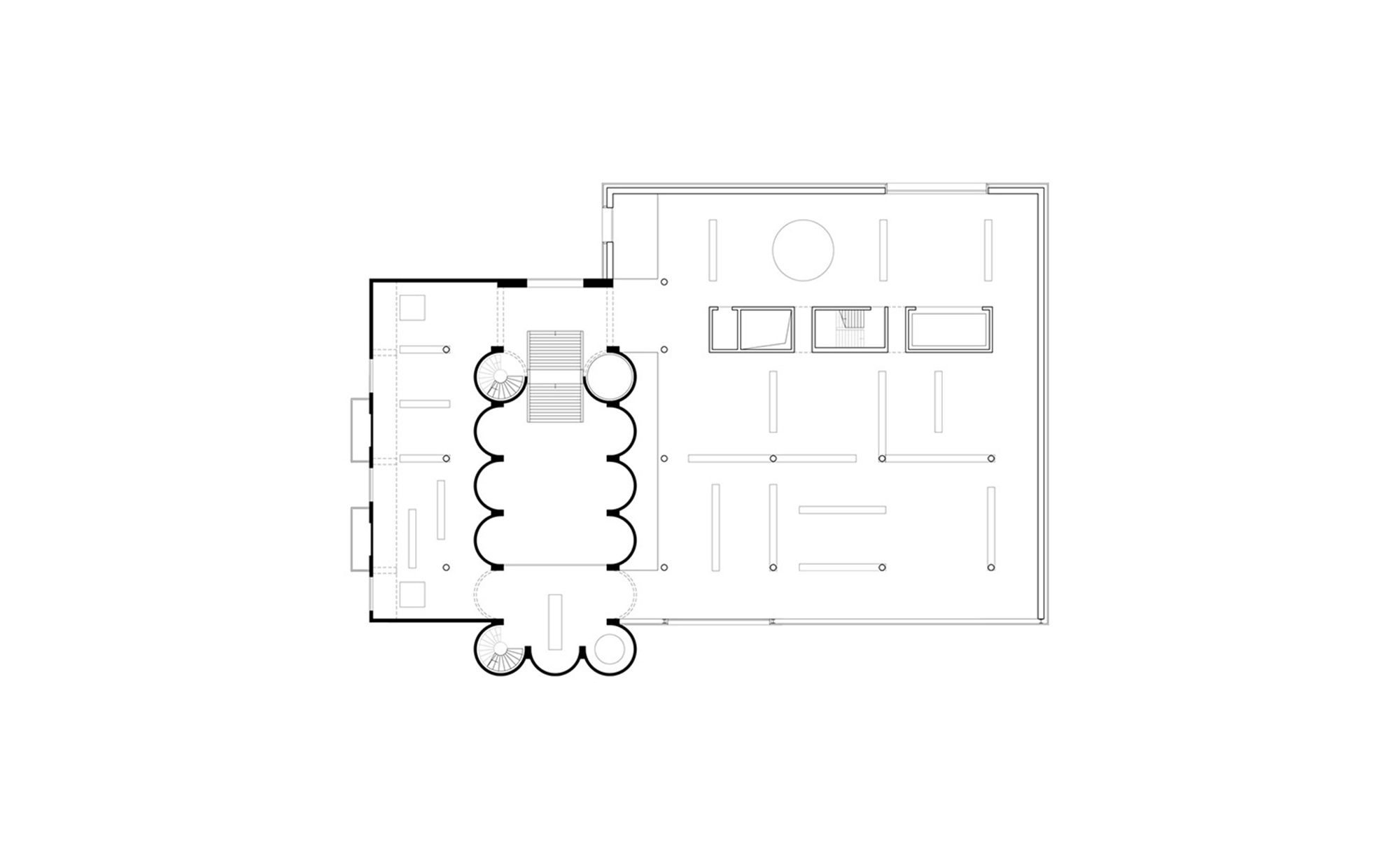
    The project proposes to remove part of the silo building, which is an historical landmark of the city and an important document of the Norwegian industrial heritage, taking it back to its original iconic 1935 version, to find a harmonic relationship with the scale of the surroundings and to establish a large attractive urban square, the Kulturtorget. The built borders of the square will all be qualified with activities and functions to produce lively interactions between interior and exterior spaces, providing a basis for a strong synergy between activities and users; the entire masterplan project supports the idea of a very open and public system of buildings with smooth transitions between inside and outside, defining the area’s connection both with the city and the close surroundings.

     

    Program: Art Museum and Cultural Quarter, Kristiansand, Norway

    Client: Municipality of Kristiansand

    Partners and consultants: OpenFabric (Landscape Architects), Antoniou, Dub, Vilches Álvarez (Bioclimatic), Filippo Bolognese (Renderings)

    Project team: Andrea Ravagnani, David Vecchi, Marta Benedetti, Elisa Cecchini, Paolo Coppola

     

     

     

Works

Office

 

  • Works

  • Office