David Vecchi

 

 

  • Martinurdalsveg, Tromsø, 2016 - 2017            Read more

     

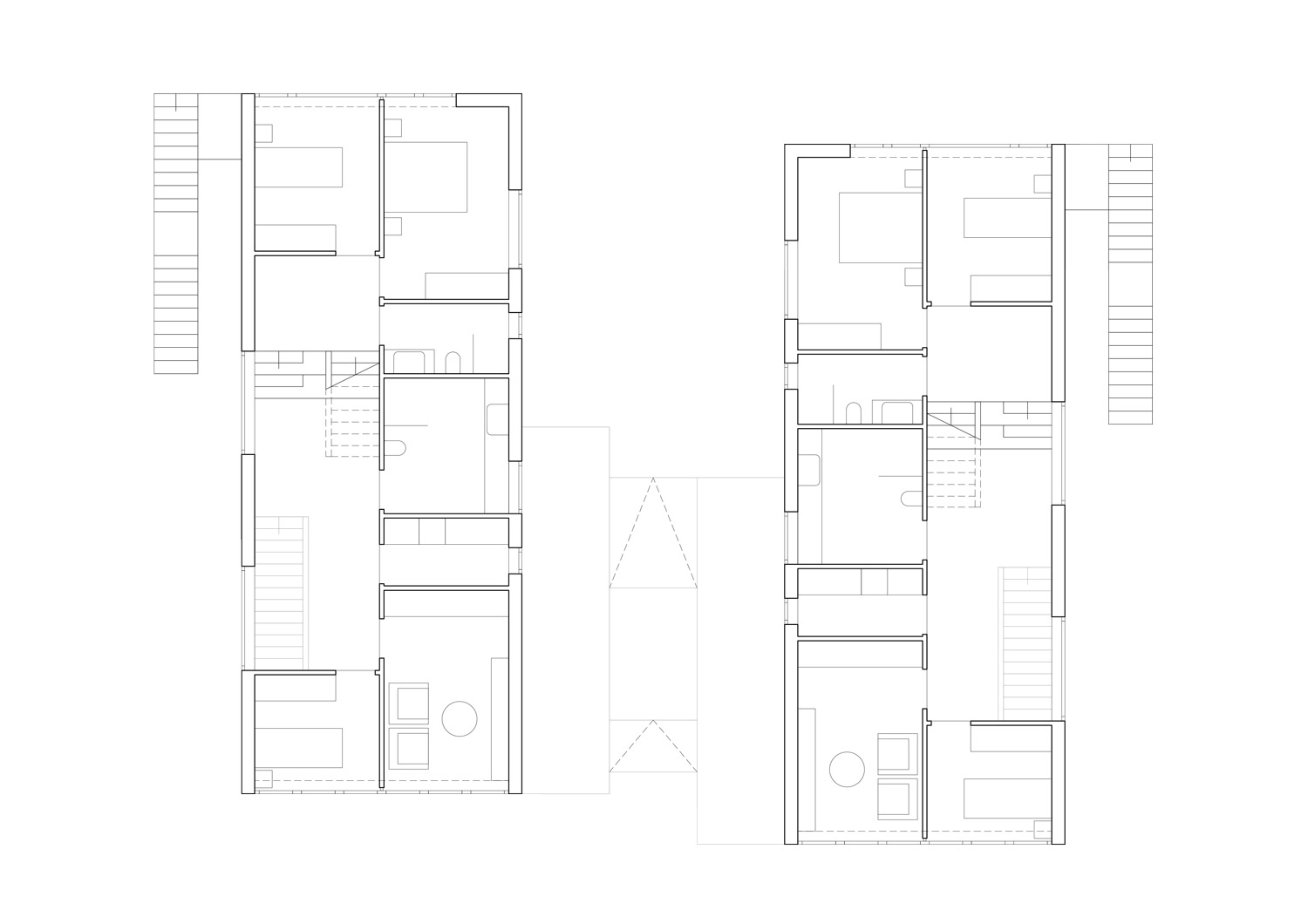
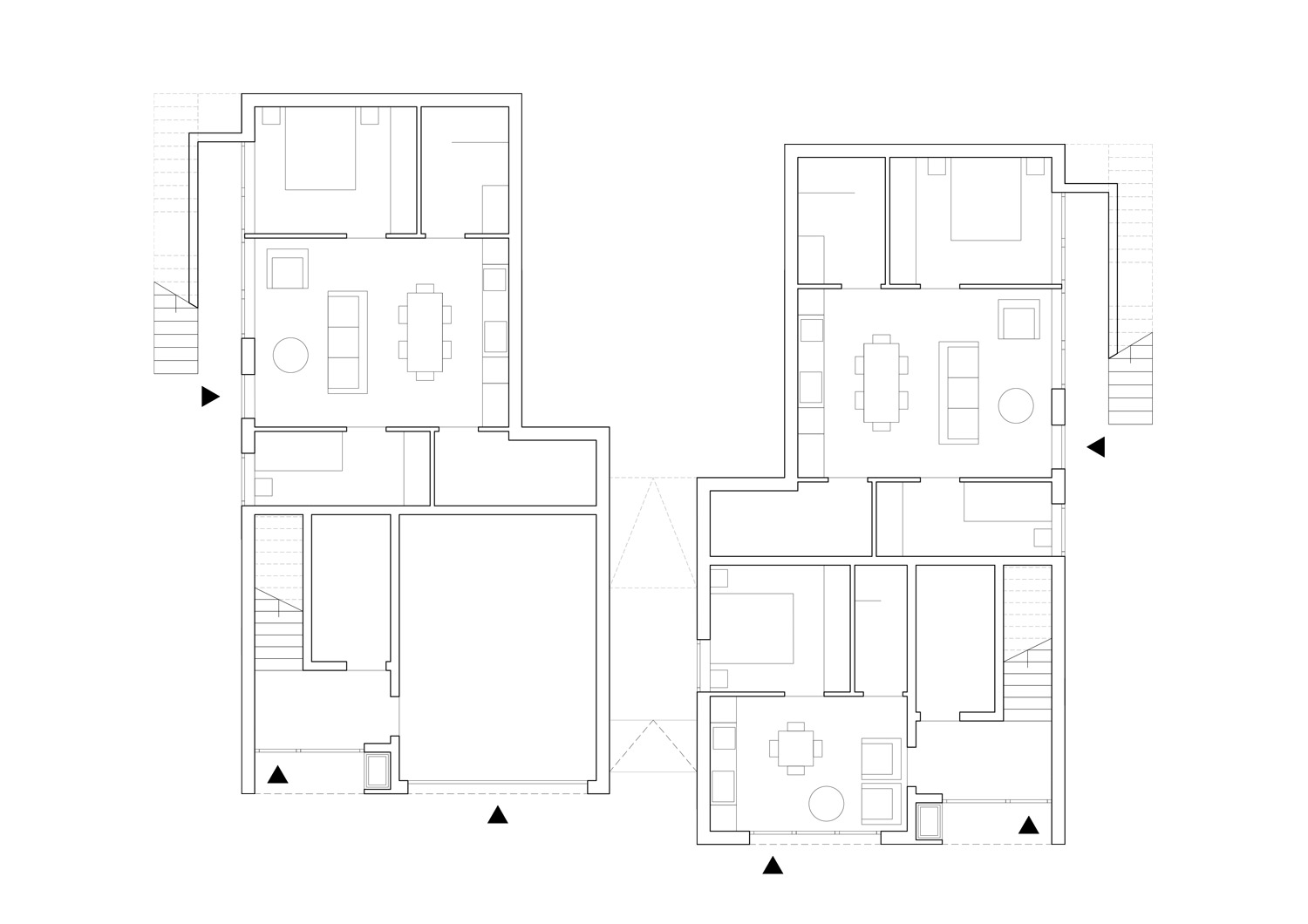
    Martin Urdals Veg is a picturesque suburban street in the middle of Tromsø, in one of the highest points of the island, close to the Prestvannet Lake. The project is designed from the outside in, due to the restrictions given by the building regulation, mostly concerning the volume shape and height. The sun presence and the climate are both very extreme in Tromso, bringing the project to work on the balance between openness towards the exterior and privacy on the sides facing the surrounding neighbours.  The circulation sequence that connects the different levels of the house affects the presence of the apertures, with large windows that provide view and light to the vertical connections and to the rest of the circulation spaces. The whole house has a directionality that enhances the feeling of being connected to the view towards the west, framed into the large openings of the upper floor. The black cladding of the walls and roofs provides a compact clean appearance while improving the solar gain of the house. In contrast with the darkness of the exterior, clean and light materials are used on the interior surfaces.

     

     

    Program: Private house, Tromsø, Norway

    Client: Lyngenbygg & Eiendom

    Project team: Andrea Ravagnani, David Vecchi, Marta Benedetti, Paolo Coppola

     

     

Works

Office

 

  • Works

  • Office