David Vecchi

 

 

  •  Leisure Center Tokyo, 2012          Read more

     

    Competition: Finalist Project

     

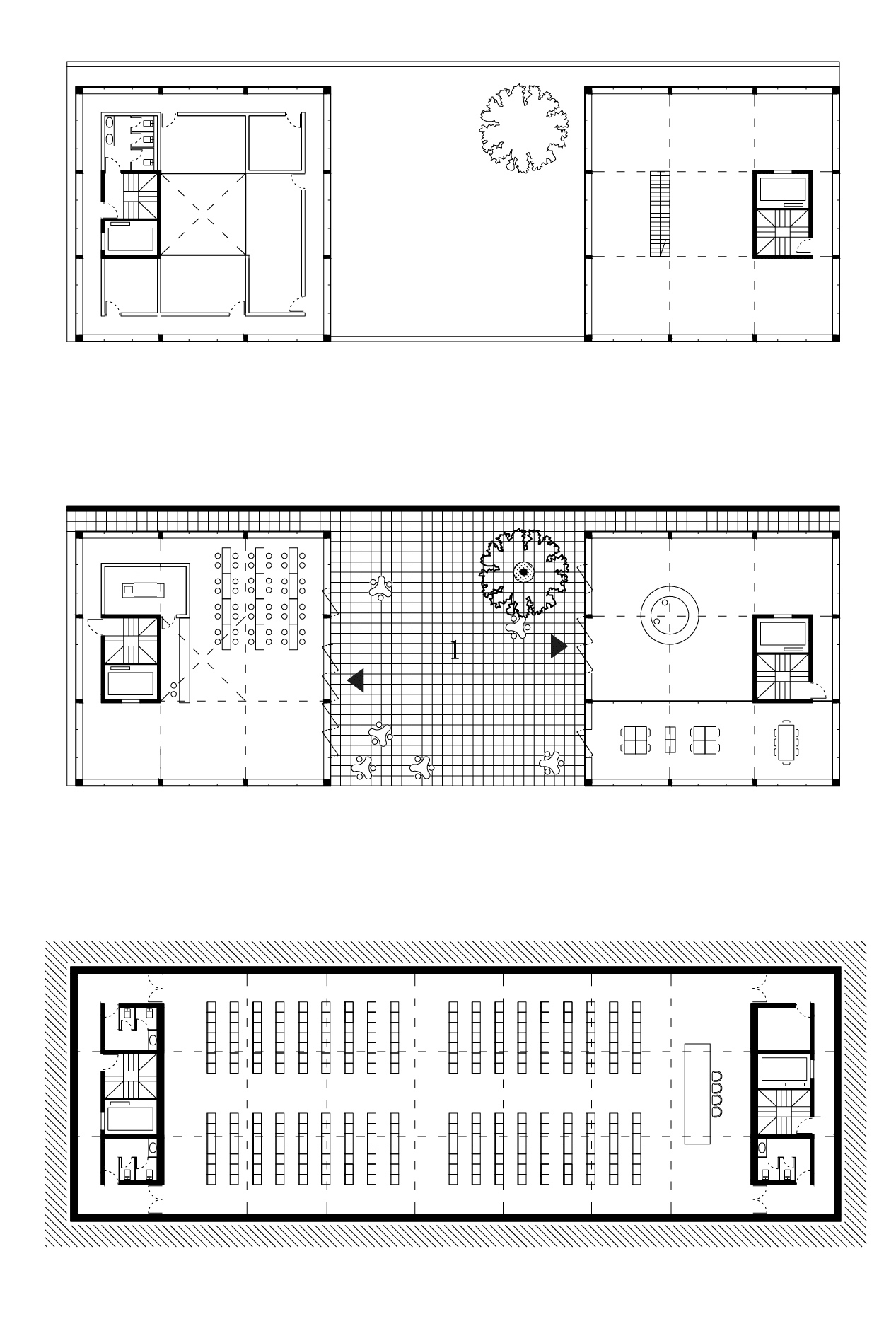
    The project site, a narrow and long plot, raised questions not only about the interior spaces organization but also concerning their adequate lighting and ventilation.

    The parcel was then divided, in plan, in three squares. To those to the north and south were assigned respectively the functions of Karaoke and Shops. The central square is a court that becomes the fulcrum of the entire complex. A place, bestowed to the city, where it’s possible to stop and rest in the shade of deciduous plants. Externally the building is a compact monolith, articulated by a Cartesian reinforced concrete warp within which are located the covering panels of the façade made of thin oya stone slabs interposed between two glass panels.

     

     

    Program: Cultural

    Client: Private

    In partnership with: David Vecchi, Emanuela Ortolani

     

Works

Office

 

  • Works

  • Office